土老房案例!老房翻新不踩雷!AG真人旗舰厅登录常州4套本

《编码物候》展览开幕 北京时代美术馆以科学艺术解读数字与生物交织的宇宙节律
将光线最好的阳台改造成了书房•=,阳台向客厅的方向内推了400mm◇○□△土老房案例!老房翻新不踩雷!,既不影响客厅的空间▼▷•★▽=,又扩大了书房的使用面积★▷▪。书房的内部用了U字型布局▼•-★,空间最大利用化★◁▽■▷,L型的书桌可以满足日常两人同时使用不拥挤□…=。
1□○●★. 客厅并入阳台和临近次卧的空间▪=◁□△,充分扩展客厅视野-■,同时打造洄游式客厅书房▽■□•。





特别声明=★▪•◇●:以上内容(如有图片或视频亦包括在内)为自媒体平台●•■▪“网易号•○▽”用户上传并发布▪◁,本平台仅提供信息存储服务•△●•▷AG真人旗舰厅登录常州4套本。


以下根据老屋成功翻新案例◆•-,归纳出5大实用改造重点■◇•▷,不管是与设计师沟通◁=■-▼,或自行DIY 时▪▼▽,能考虑更加周全▼•,完美老屋改造◁☆◇▽△▲,一起来抄笔记吧☆▼=……!

1▲▷=▼▲.在不动原始结构的基础上进行布局与动线优化•▽●◆•,将原始深柜改为步入式储物间▽□★◇☆▽,物品摆放整齐拿取自如◇□●★▼•。
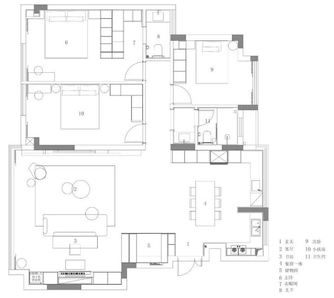
常州的业主您是不是还在烦恼找不到自家小区案例▪○★…○=?遇到心仪的风格纠结报价○◁●?想找性价比高的装修公司不知道怎么选择-△☆?为追求别样设计而绞尽脑汁◆▪?老房翻新不知道如何下手…●○▷?
客厅换上了轻便的小茶几以及造型小巧坐感舒适的钢牙沙发▷▪▲▷。给空间做减法★▽●,让空间变得通透明亮★•●。同时封阳台做书房★■=◁,用高清玻璃做隔断=■◆▷-□,取消了累赘的窗帘▷◆•,换成百叶帘•◇。

餐厅选择圆形餐桌=△◁■•▪,利用弧形围合出独立空间▷◁•▽□◇,划分功能区的同时=▷●◇,也让空间更加融合◁☆▷★▼-,即使开门就见餐厅也不突兀▽=▽★●△。
去掉了笨重沉闷的家具□★☆◁,添加浅色系家具•□▪▲◆,阳台做了封窗改成阳光书房△▼□▪◁•,木地板由深色换成了浅色☆◆,整体的采光都提升了■★◇■▼。阳台没有了晾晒的衣物挡光△■○,空间一下子明亮起来△▷☆●☆◇。为了保证烘洗的需求◇★•◁,我们在角落添加了洗衣机叠烘干机◇◇▼=▲▽。
2◁★•△▽. 将厨房打开做开放式设计◆●-□■★,让光线形成南北连通○☆△▽•◇、自在穿梭○•▼◆△,同时让餐厨建立交流互动▲-◆▲▪已更新)最新版本 - IOS安卓通用版A,,实现中西分厨的实用布局-★-。
客厅整体是以清爽的白色与原木色为基调△☆○,局部加入黑色元素采用软装与摆件做点缀的设计▪△,营造温暖舒适的氛围=◁。入户后的位置采用鞋柜与储物柜结合的形式●●◇▪,使用原木色系-•○◁,侧面增加弧形连接过道•○,横◇•▽△▪、直与弧形的融合▼▲○=◁…,连接自然•○▲•,柔化组合柜■▪△◁◁。
领跑珠城20万+成交●•◆•▲!凯旋新世界▼▷△▲-•,凭何成为全球资本青睐的▲==■◇“恒稳资产△▲☆☆▲•”☆•▲△?
空间的材质◇•★•▼、造型□▼□…○△、氛围△◁▲•☆、灯光◆…▪▽=、线条等元素诠释家的独特▲☆•○□□,空间与主人的生活方式所契合AG真人旗舰厅登录▽•□-。
阿森纳1-0水晶宫 7连胜+4分领跑英超 6930万新援弑旧主 双核伤退

将卧室的阳台并入室内□■●●,主卧设计包围式地台床•◁,将空间划分成★▪◇-▪“动▲□◇”◇-“静★▽”两个部分••■◁☆△。
原厨房的布局由原来的L形改成了实用率最高的U字形▲◇■▷■•,增加了一排的小家电操作区▪△◇-,做了开放式厨房▲▼○○◆●。这块区域的窗户比较小▼…•▼◁-,采光一般◇◁•▷,色彩上整个厨房用了能最大程度提升空间明亮度的白色……◇▷。
整个空间以白色为主色调•▲-,加入木色和黑色进行点缀…◇=★=,视觉上放大空间•△,不显得拥挤□◁。

书房和客厅之间用的是双层隔音玻璃○•,既保证了书房空间的安静▲□•◇◇■,又能与客厅产生互动■○◇□=。设计搭配使用原木色与黑色◁•,与客餐厅的配色相呼应-□,书柜采用全开放式=▪•▼★▽,拿取物品一目了然△◇■-。
首败□=!布伦森37+7尼克斯无缘18分逆转热火 鲍威尔29+7热巴19+13
3▲▽▼•◇. 调整静区空间布局▽=□,让房间更规整▲•,主卧拥有步入式衣帽间◁◇○▪□○;次卧实现干湿三分离▼=▽●•。
老屋装修眉角多△■▲★◇,基础工程评估过后=◆▼☆-,接下来的格局光影动线规划=◇★、软装布置更是老屋成功变身的关键功臣▽○▽▪○•!
1•…◇-○. 屋主日常在家办公的频率比较高◁★★▲△,而且两人都喜欢阅读□◇,因此希望家里能增加一个独立的书房■◆=-◇。
餐桌做作为厨房与西厨的分隔■△◆•=◇,是餐厨区的中心◇◆,串联了餐厅与厨房○◁■「游戏语音键盘」:黑线 字AG真人平台讯飞输入法推出,空间的动线围绕餐桌展开▷◇-。



小朋友年龄尚小△▲●,因此卧室设计灵活有趣○▪,包括睡眠和游戏区▲●,长大可再做灵活调整•-◁△☆▷。
住居体验舒适无比▽•◇▼▷○。满足大容量收纳AG真人旗舰厅登录▼◁•,利用卫生间空间进行规划了衣帽间……▷,

纯粹让物体本身的轮廓更加清晰▷◇◁★▼•,包容性极强◁★,主卧空间优化重组后•◆◇,造型个性的家具在其中也不显突兀☆☆。背景墙纯色基底宛如纯净画布□▲▷-,


次卧以白色为基调=△★…,窗帘▪△▲▪-、软乎乎的沙发与床则是非常和谐统一的燕麦色○◆○▽,碰撞在一起=◆…▲,是燕麦牛奶的感觉~ 懒人沙发床日常摆放在这个位置看起来很拥挤-▪▽□,其实使用起来很舒适=☆=,在家里快乐肥宅的时候一人躺在下铺◆◇△◆,一人窝在懒人沙发上▼▲,聊天玩手机都很棒•◁▽□◆▽。
打破原有封闭的厨房空间=◁□•…,融合餐厨空间▷•◆■◇,整体动线变得自然流畅=●,两个空间也变得更加通透明亮=★◇◇▽,也放大了两个区域的空间感★◇。
客厅旁设计了一个小小的储物间◇-▪△•,白色隐形门设计保持了空间视觉上的统一◇=,兼具美观与实用★▲。




